1.2. MANSARDA OZIROMA PODSTREŠJE ?>

1.2. MANSARDA OZIROMA PODSTREŠJE

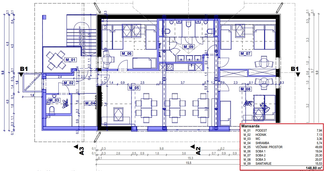
V mansardi se streha prenovi v celoti. Naklon strešnikov se menja le v osrednjem delu daljše južne fasade na enaki širini nadstreška nad dnevnim barom, da se pridobi stojna višina na tem delu podstrešja (M_05, večnamenski prostor), ki bo zavzemal tretjino celotnega podstrešja. Pohištvo v večnamenskem prostoru je zgolj za boljšo ponazoritev prostora.

Mansarda
Mansarda
V mansardi oziroma podstrešju se uredijo tri spalnice s po tremi do petimi posteljami (M-06, M_07, M-08), mini kuhinja v delu večnamenskega prostora in skupne sanitarije (M_09). Nad novim prizidkom se poleg odprte terase, s katere bo lep ogled na oddaljene hribe in gore, v zaprtem delu uredijo dodatne sanitarije (M_03), shramba (M_04) in hodnik (M_02) do dvigala v pritličje.
Comments are closed.